Diese Ultra moderne Villa wirdt auf einem großen Grundstück gebaut, nur 300 Meter vom Strand und allen Annehmlichkeiten.
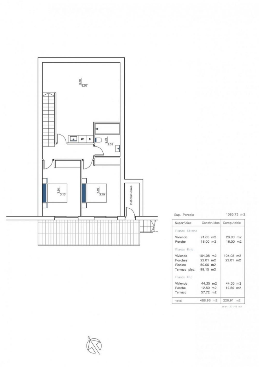
Die geschmackvolle Einrichtung der Villa besteht aus drei Etagen. Das Erdgeschoss ist auf der Terrasse und der Pool – Ebene.
Auf dieser Etage ist ein großer Wohn- / Essbereich mit einer voll ausgestatteten amerikanischen Küche mit Kochinsel. Außerdem, ein Schlafzimmer mit Bad, WC und einer überdachten Terrasse. Unten gibt es eine Ebene mit zwei Schlafzimmer, ein Badezimmer und eine große Wäsche / Abstellraum. Auf der obersten Ebene befindet sich ein großes Hauptschlafzimmer mit eigenem Bad, Terrasse und Meerblick.
Geräumige, elegante Villa und nur wenige Gehminuten vom Sandstrand entfernt.
- Balkon
- Doppelverglasung
- eigener Pool
- Einbaukleiderschränke
- Fußbodenheizung
- Garage inklusive
- Garten
- In Planung
- Jardin
- Klimaanlage
- Meerblick
- Pergola
- strandnah
- Terrasse











291 m2
3